Skip links

Residential Villa at Madurai

See All Projects

Project Details

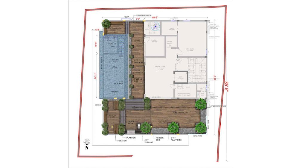
This residence is large residential villa of 12,000 sq. Ft designed in the heart of the temple city. The architectural style features using of contemporary materials & design styles. The landscape focuses on the juxtaposition of spaces between the residence and the exteriors to make it inviting and draw the attention of the view outside. The landscape is designed to complement the architectural style and be in-sync with the design. It doesn’t take away or stand out on its own. It’s design to be in harmony. landscape areas features neatly designed & designated landscaped spots which make it both usable & aesthetic.

Client

#

Location

Madurai

Deliverables

Design

Year

2021

some of our other projects

error: Content is protected !!
×

Powered by WhatsApp Chat

× How to get this Started?